Bonjour à tous,
Je fais appel à votre grande expérience car je dois avouer que je sèche complètement là.
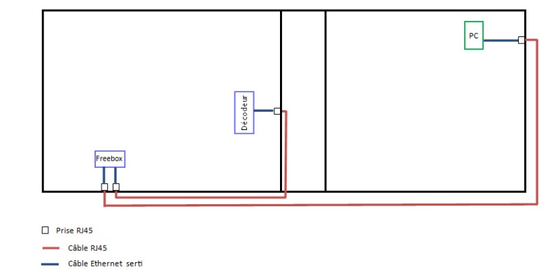
Après être devenu fou suite à une énième déconnection de la carte wifi de mon pc, j’ai décidé de passer par le cable ethernet ce qui m’a changé la vie. Sauf que madame en a eu marre de voir un magnifique cable au milieu de son salon (moi aussi d’ailleurs), j’ai donc décidé de passer un cable rj45 par l’extérieur de ma maison raccordé à 2 prise rj45 pour y brancher d’un côté ma freebox et de l’autre côté mon pc. Une fois tous les branchements faits, j’allume la machine qui me dit: « cable ethernet non branché ou endommagé ». Je teste donc avec différents câbles pour voir si l’un d’eux n’est pas endommagés (j’ai pris les câbles de mon décodeur free pour lequel j’ai fait la même opération et qui a très bien fonctionné), aucun changement.
Je me suis donc dit que le problème venait du câblage et en démontant la prise rj45 de mon pc je me suis rendu compte qu’en dénudant la gaine j’avais sectionné le fil blanc/bleu. J’étais soulagé car ayant gardé un peu de mou, j’ai tout de suite recâblé ma prise et me suis dit que tout irais bien, erreur. J’ai donc regardé au niveau de la prise de ma box qui elle n’avait aucun défaut. J’ai fini par me dire qu’il faudrait que je repasse un nouveau cable car j’avais du endommagé le premier au montage et dans un éclair de génie, j’ai essayé de branché mon pc portable sur cette fameuse prise et là, miracle, tout fonctionne.
C’est à cette étape que je ne comprends plus rien, mon pc fixe branché en direct sur ma box fonctionne parfaitement mais il ne fonctionne pas sur la prise rj45 pourtant mon branchement à l’air d’être bon, étant donné que mon portable fonctionne dessus.
Quelqu’un aurait il une idée d’où le problème peut venir?
Merci d’avance
Message edité le 01/06/2016 à 15:34
